The Keny House

Authors

Authors

Vidisha
Dhar
Kareena
Kochery

The Keny House

Authors

Authors

Vidisha
Dhar
Kareena
Kochery

Ravi Keny is a resident of Dharavi, Koliwada Mumbai. He belongs to a family of fishermen, indigenous to the Koliwada (Koli- a fishermen community, wada-a  neighbourhood) that existed before Mumbai evolved into a colossal global city. His association with urbz goes way back to the year 2008 when he invited Matias Echanove and Rahul Srivastava to conduct the Urban Typhoon workshop, with an aim of creating an urban vision for Koliwada. Later, this coalition also worked towards Koliwada - earlier falling under the category of “slums” to give it the status of an “urban village”.  As being a part of the Koli Jamat (a registered Koli association), Ravi actively engaged in the physical and social development of his neighbourhood. 

Recently, the Koliwadas have come to the forefront of urban development in Mumbai. In the year 2014, all the Koliwadas got the legal status of “Gaothans” (urban villages), which formally recognises the Koli community as the land owners of Koliwada as opposed to being encroachers on public land. While urban development in Mumbai continues to be directed by flows of private capital, the Koliwadas have been mandated to self-develop their land. However, the rising construction cost and unsustainable livelihood makes it unfavourable for the community to develop their neighbourhood. Amidst the rising pressure both from the authority and the market forces, individual Koli families have initiated the upgradation and redevelopment of their ancestral homes. The reconstruction of Ravi Keny’s house is significant in the socio-cultural context of Koliwada. It can potentially set a precedent for the future of self-development within the Koli community.

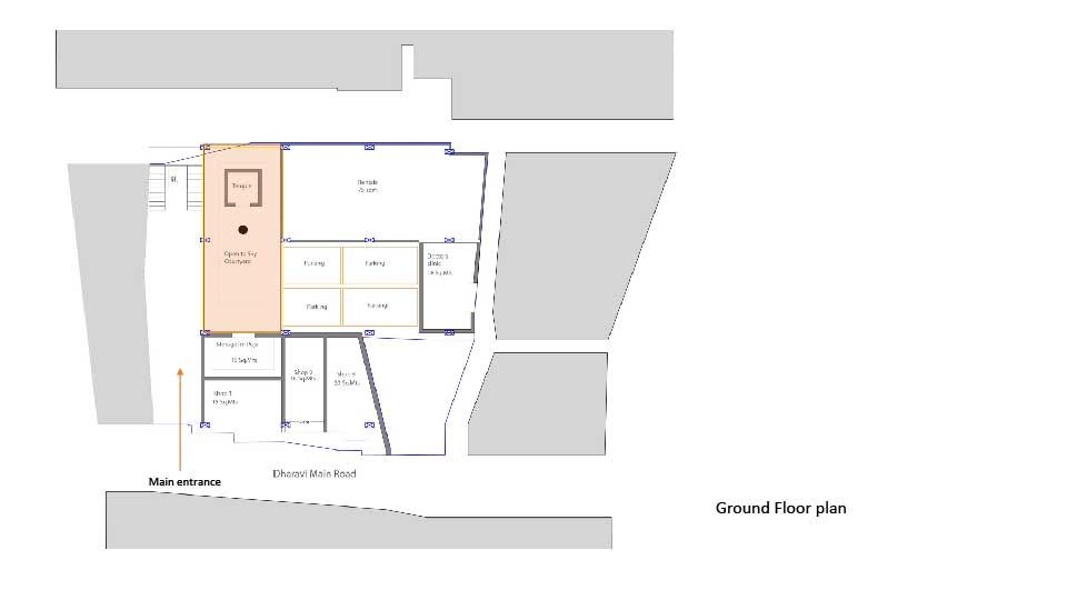
The Keny house is situated on Dharavi main road abutting the Koli Jamaat (community) building. Built incrementally, its earliest unit resembles the traditional chawl typology of Bombay comprising of a verandah running along the rooms that open onto it. Here, the verandah doubles up as a corridor giving access to a large central room and consecutive smaller rooms.  Over the years, the house has been incrementally constructed to accommodate the new additions to the family which now comprises 38 individuals. The house is now three storeys tall. Currently, the total built area is unevenly distributed amongst the five brothers. In addition to the Keny residence, the ground floor also has a few shops and small residential units, which the Keny’s give out on rent.  The main entrance of the Keny house opens into a small outdoor space holding the tulsi plant (the holy basil), this leads to a maze of narrow passages and staircases that effectively bring in slivers of light and breeze.

Ravi Keny, has assumed the role of co-ordinating amongst his family members and communicating with the urbz team. The initial meetings with Ravi Keny highlighted the requirement and the vision of their new home. It was clear from the onset that in order to avoid conflicts, the property had to be redistributed equally amongst the five brothers. The building bye-laws allow a maximum of three storeys to be built on the plot. The ground floor (330 Sq.mts) would retain the rental and commercial units along with parking space for five cars. This leaves us three floors whose areas have to be divided into five equal parts, one for each of the five brothers. 

The brothers want to accommodate future generations of the Keny family, however they are certain about one thing - no shared kitchens and toilets. Shared household functions like cooking were common within joint families, this has changed over the years with women opting to have their own kitchens to better manage their time and resources. The sharing of toilets, although typical of the chawl system, is undesirable in families that aspire to a higher standard of living. Having your own toilet, however small, goes a long way to achieve these socio-cultural needs and aspirations.  It became clear to us that the way forward would be to envision the new building as a space designed to accommodate some aspects of communal living yet maintain the autonomy of each nuclear family. Thus, to gauge and balance the needs and aspirations becomes critical.   

Each brother has three to four children, while not all of them reside here, it was important that they are provided for. Here is where inter-family dynamics decided the further appropriation of space within each brothers allocated area.  After further discussions with Ravi Keny a design emerged such that each brother would have four independent studio apartments each with their own kitchen and toilet. Each studio apartment could then be handed over to one child and his family. 

Apart from the practicalities of dividing and sharing space, there is also the tradition of having a sacred space or Puja room (worship area) in most Indian households. Keeping with this tradition, the Keny house has a dedicated room to house the idols of their Gods and Goddesses. This room is used for daily worship as well as to accommodate large ceremonial gatherings. The Keny’s have expressed a strong wish to continue to have a designated space for worship and festivities. 

This is a challenging project with unusual space constraints and a high density of occupants. After weeks of drawing, modelling and back to more drawing, we managed to achieve a design that takes care of the spatial redistribution as well as quality. The key feature of the design is a courtyard encompassing a temple. This feature addresses the following requirements; 

- The need for light and ventilation 

- A connected open space which is also semi-public as neighbours from the back alley traverse the Keny house to get to Dharavi main road

- A dedicated, central place of worship, large enough to accommodate the entire family  

- Ravi Keny has been keen on introducing the concept of rain water harvesting to address the growing issue of water scarcity and to introduce a way of securing water supply for the residents of Dharavi. This was incorporated in the design by channelizing rain water through the courtyard into an underground water tank. 

On the ground floor, the area for the shops is retained along with the small residential units and space for four car parks. The vertical circulation, both the staircase and elevator, open up to a common living area on each floor. The area on each floor is equally divided into a total of eight studio apartments (30 Sq.mts each), four for each brother. Four of the units are accessed from the shared living room, the other four are accessed by a verandah off the shared living room and overlooking the courtyard. 

While Ravi Keny has approved this design we are now awaiting feedback from the rest of the Keny household. Until then, we continue to reimagine what this house could look and feel like. We have put together some drawings so you can have a peek into our process so far, check them out below. 




 

People involved

Samidha
Patil
Kareena
Kochery
Vidisha
Dhar
Vanshika
Shah
Anubha
Tholia
Parth
Surati